PENSADAS PARA ESTOS TIEMPOS


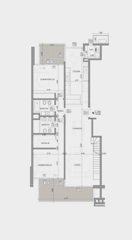
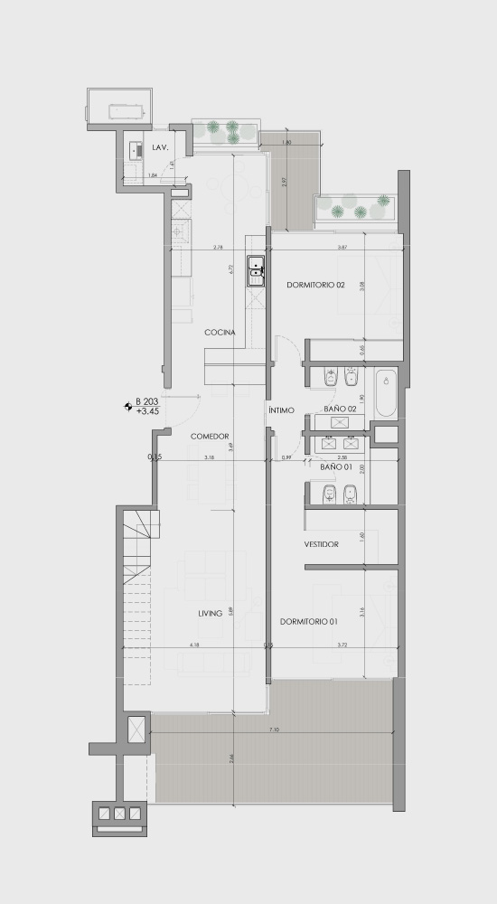
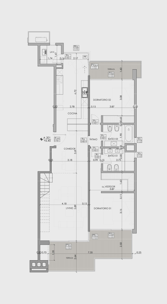
Fisherton Park fue concebido para una nueva forma de vida, moderna, adaptada a este momento. Por ello, el proyecto propone distintos tipos de unidades con 1, 2 y 3 dormitorios, con baño en suite. Funcionales, con un diseño de excelencia y con un alto nivel de calidad constructiva. Con amplios ambientes, balcones individuales y terrazas exclusivas equipadas con parrillas.

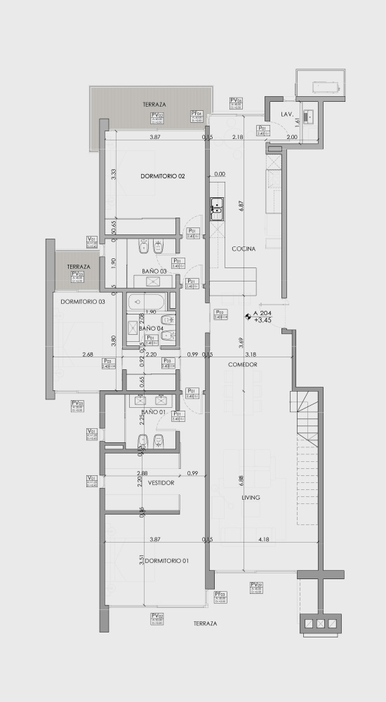
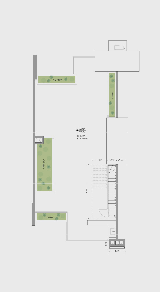
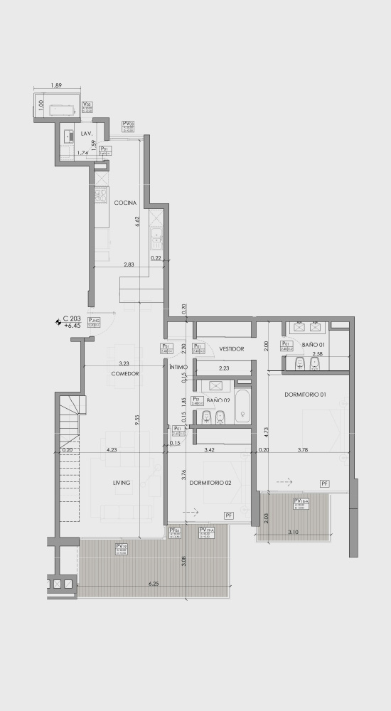
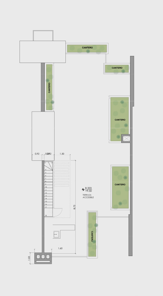
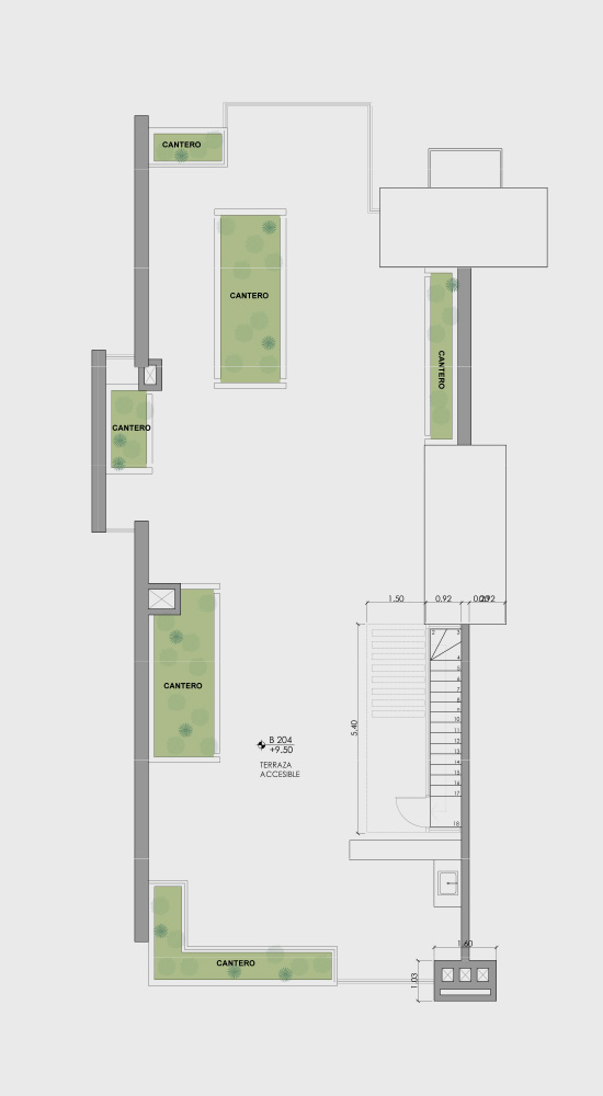
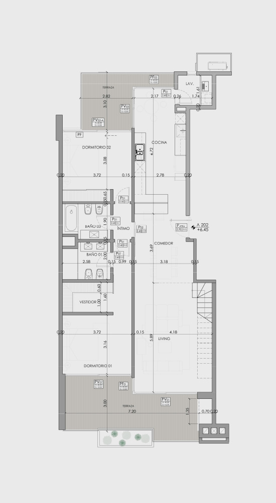
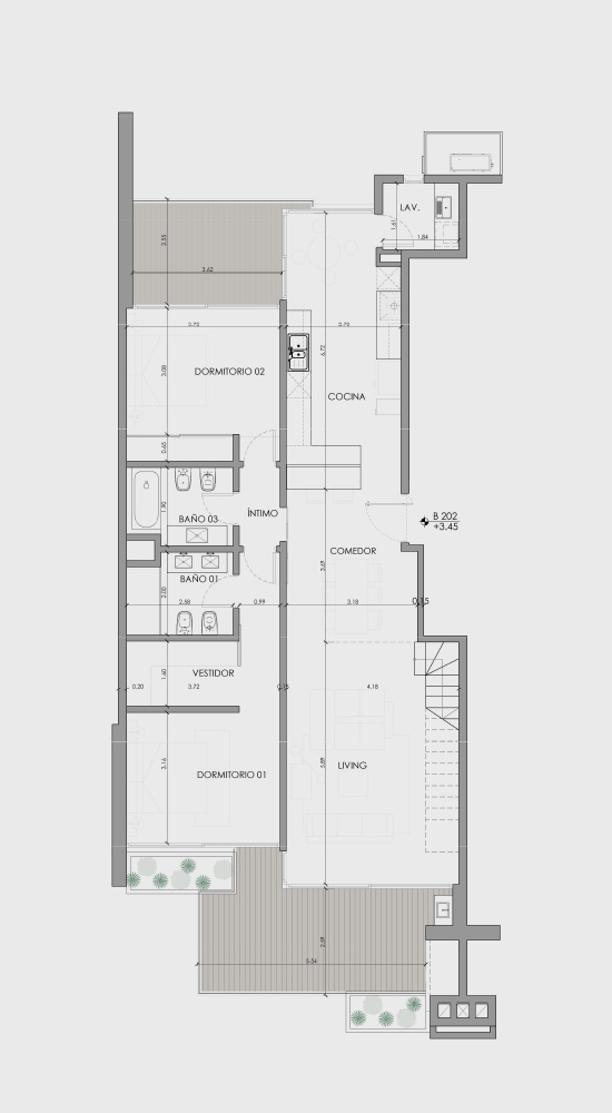
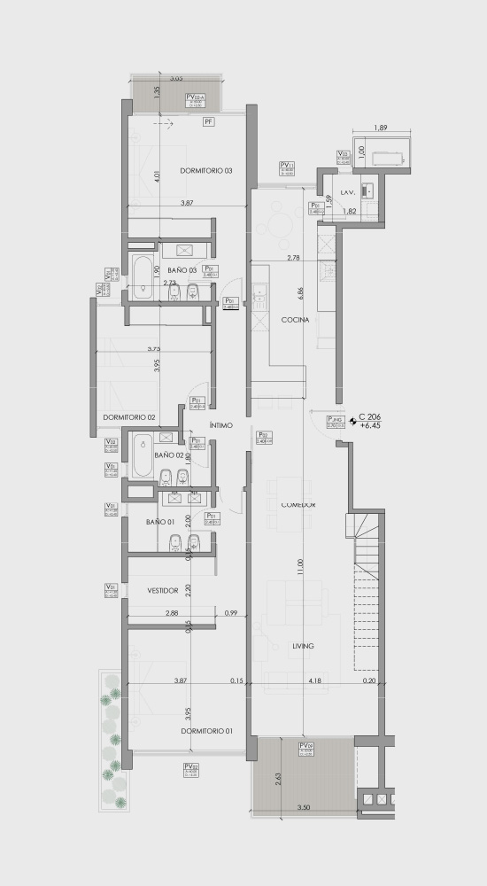
Zoom Hacé click en cada unidad para descubrir más sobre ella:

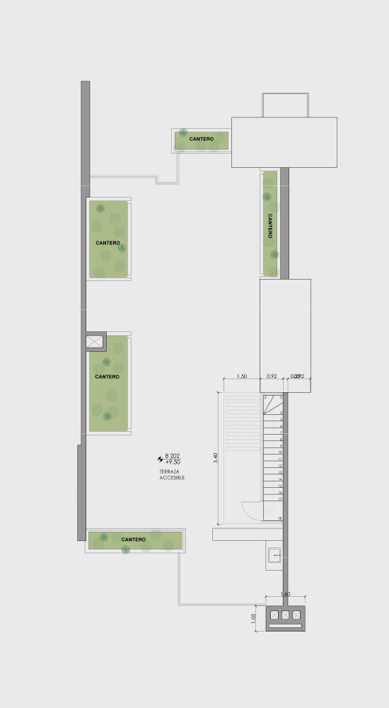
SEGUNDO PISO


+ + + + + + + + + + + + + +